• Home
  • Profile
  • Services
    • Completed Construction Projects
    • Design Works
    • Plotplan Approvals
      • Building approval
      • plot sub-division
  • Gallery
  • Interior
  • Contact

Blue print


  • ayanambakkam1
  • medavakkam-1-jaisankar
  • medavakkam-2
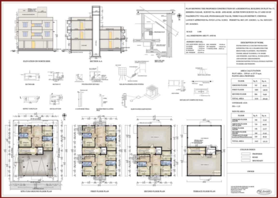
  • paleripattu
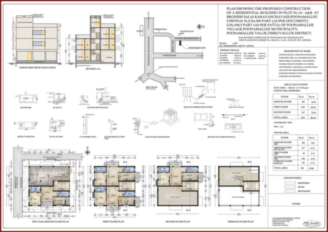
  • poonamallee--block-A_B
  • poonamallee--block-C
  • ramanan-medavakkam
  • sirenkalathur

Pre-dcr


  • bas-thuraipakkam
  • plot--28
  • plot-140
  • puzhuthivakkam-plot44
  • puzhuthivakkam-plot48
  • sekar
  • valasaravakkam-plot-14

Address

# 12, Shree Virutchham, Ground Floor, Kamakodi Nagar, 1st Main Road, Valasaravakkam, Chennai - 87.

Phone

+91 93810 23163
+91 91762 84004

Email us

info@edjassociate.com
edjassociates@gmail.com

Designed by

↑